Wir verwenden Cookies.
Mehr Informationen finden Sie hier.
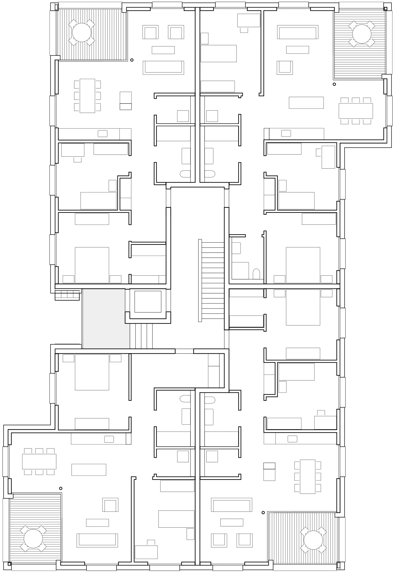
In Bätterkinden an bester Lage, vis-à-vis des Bahnhofs RBS, mit hervorragendem Anschluss an den öffentlichen Verkehr, soll auf der Parzelle Nr. 128 eine architektonisch hochwertige und zusammenhängend gestaltete Überbauung entstehen. Die Einbettung der Bauten in die bestehende Topografie soll die vorhandene, leicht gegen Norden geneigte Hanglage auf der Parzelle spür- und ablesbar erhalten. Die freie Landschaft südseitig der Parzelle und der gestaltete Aussenraum innerhalb der Bebauung sind fliessend miteinander verbunden.
Das Überbauungsprojekt reagiert auf die lokale kleinmassstäbliche Bebauung mit ruhigen, liegenden Baukörpern und Staffelungen an den Rändern der Bauvolumen. Alle Schmalseiten der Wohnbauten sind zweigeschossig und weben sich mit ihren durch Loggien und gedeckten Aussenräumen aufgelösten Ecken in die Massstäblichkeit der umliegenden Wohnbauten ein.
Den Auftakt zum neuen Quartier bildet das neue Alterszentrum mit 40 Pflegeplätzen und 9 Alterswohnungen. Das Überbauungsprojekt reagiert auf die lokale kleinmassstäbliche Bebauung mit 7 fein gegliederten Mehrfamilienhäusern (47 Mietwohnungen und 45 Alterswohnungen) und schafft ein neues Gebäudeensemble.
| Kategorie | Neubau |
| Objektadresse | Bahnhofstrasse , 3315 Bätterkinden |
| Bauherrschaften | Personalvorsorgestiftung Visana, Senevita AG |
| und private Bauherren | |
| Leistungen Architektur | 60% von SIA 102 |
| Termine | Planung 2015 – 2018 |
| Ausführung 2019 – 2021 | |
| Landschaftsarchitektur | Moeri + Partner AG, Bern |
| Bauingenieur:in | Bill Weyermann Partner AG, Koppigen |
| Elektroplanung | Ingenieurbüro IEM AG, Bern |
| HLKS-Planung | Ingenieurbüro IEM AG, Bern |
| Bauphysik | Grolimund + Partner AG, Bern |
| Brandschutzplanung | Gartenmann Engineering AG, Bern |
| Volumen SIA 416 | 56 060 m3 |
| Geschossfläche SIA 416 | 15 980 m2 |