Wir verwenden Cookies.
Mehr Informationen finden Sie hier.
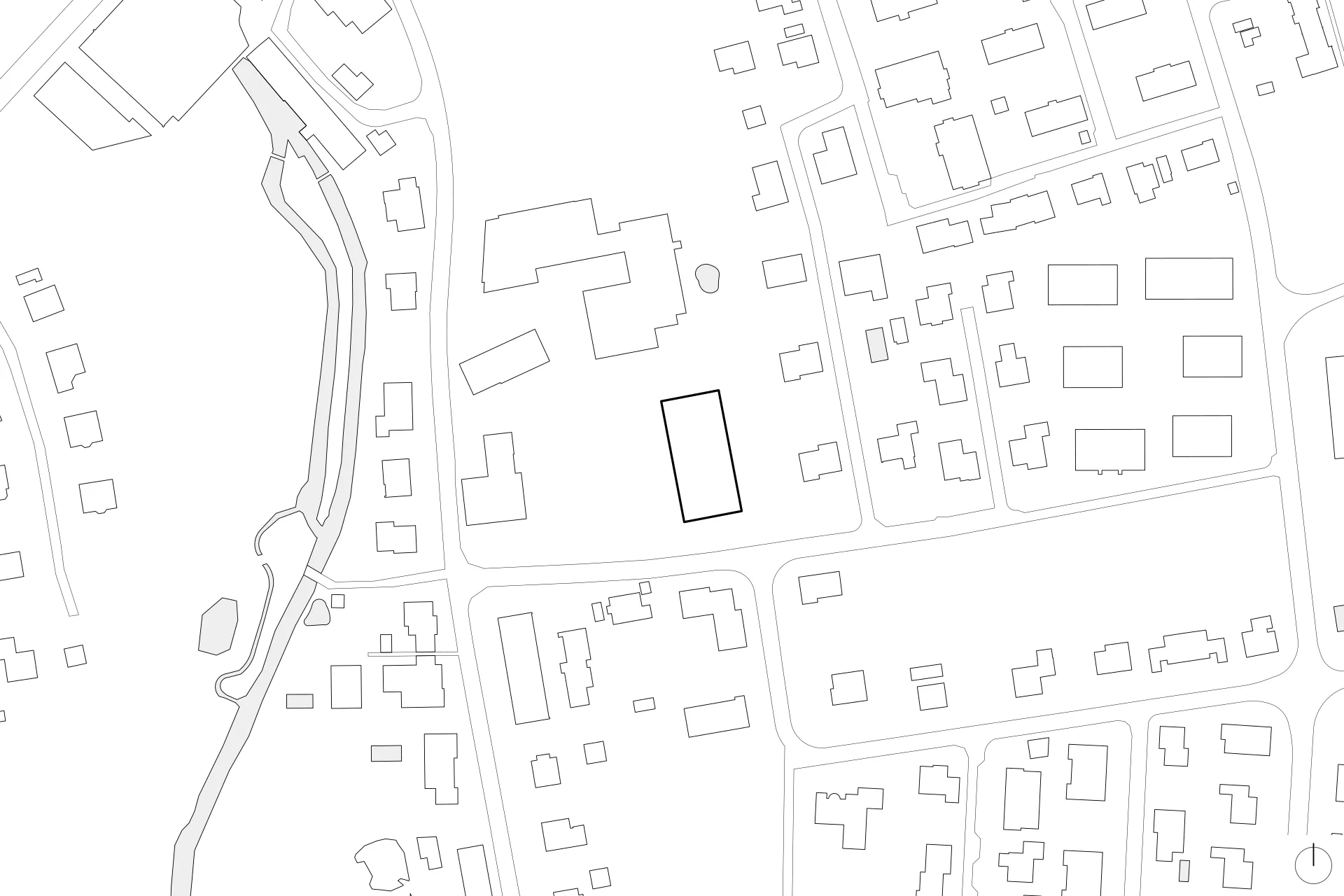
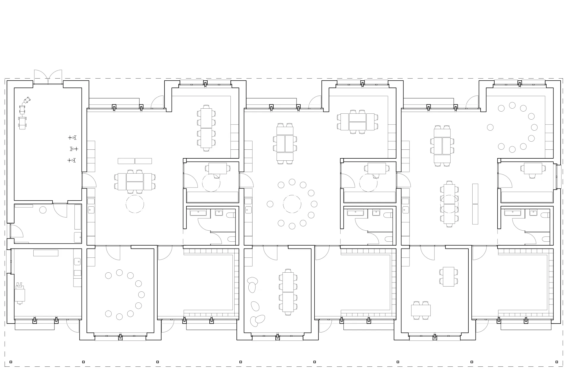
Ein eingeschossiger Neubau ergänzt das Ensemble der Schulbauten und stärkt durch seine Setzung die räumliche Fassung sowie die Bedeutung des Schulplatzes. Die Erschliessung der drei neuen Einheiten für den Zyklus 1 erfolgt über einen gedeckten Vorplatz, der sich zum Pausenbereich orientiert und einen klaren Zugang bildet.
Die drei Basisstufenklassen sind als eigenständige Einheiten organisiert. Die Grundrisse sind übersichtlich strukturiert und auf die Bedürfnisse der Kinder ausgerichtet. Über einen gemeinsamen, gedeckten Vorbereich gelangt man in die grosszügigen Eingänge mit Garderoben.
Eine rückwärtige Raumschicht bündelt die zudienenden Funktionen wie Technik-, Neben- und Lehrerbereiche und sorgt für eine klare, funktionale Organisation. Der Hauptraum ist durch eine leichte Zonierung gegliedert und ermöglicht vielfältige Nutzungen für Unterricht, Spiel und Rückzug.
Ein dem Hauptraum zugeordneter Nebenraum unterstützt das Arbeiten in kleineren Gruppen und die integrale Förderung. Jeder Einheit ist zudem ein gedeckter Aussenbereich zugeordnet, der direkt erschlossen ist und den Innenraum erweitert.
Der Neubau wurde als nachhaltiger Holzbau realisiert.
| Kategorie | Neubau / Schulraumerweiterung |
| Auszeichnung | Planerwahlverfahren 1. Preis |
| Objektadresse | Schulhausstrasse 1, 3362 Niederönz |
| Bauherrschaft | Einwohnergemeinde Niederönz |
| Leistungen Architektur | 100% von SIA 102 |
| Termine | Wettbewerb 2023 |
| Planung 2024 – 2025 / Ausführung 2025– 2026 | |
| Landschaftsarchitektur | Klötzli Friedli Landschaftsarchitekten AG, Bern |
| Bauingenieur:in | Wälchli & Partner AG, Langenthal |
| Holzbauingenieur:in | Pirmin Jung Schweiz AG, Thun |
| Elektroplanung | engineering 5D, Bern |
| HLKS-Planung | GTI Engineering AG, Bern |
| Bauphysik | Pirmin Jung Schweiz AG, Thun |
| Volumen SIA 416 | 3 300 m3 |
| Geschossfläche SIA 416 | 700 m2 |
| Kosten BKP 2 | CHF 3 092 000.– |