Wir verwenden Cookies.
Mehr Informationen finden Sie hier.
Der zweigeschossige Neubau an der Scheibenstrasse ergänzt das Schulangebot im Quartier und bietet Platz für zwei Basisstufenklassen. Die klar strukturierte Raumorganisation mit zugehörigen Aussenräumen ermöglicht einen zeitgemässen Unterricht gemäss Lehrplan 21 und stellt den Schulraumbedarf langfristig sicher. Das Gebäude wurde über einer bestehenden unterirdischen Einstellhalle errichtet und vollständig in Holzbauweise realisiert.
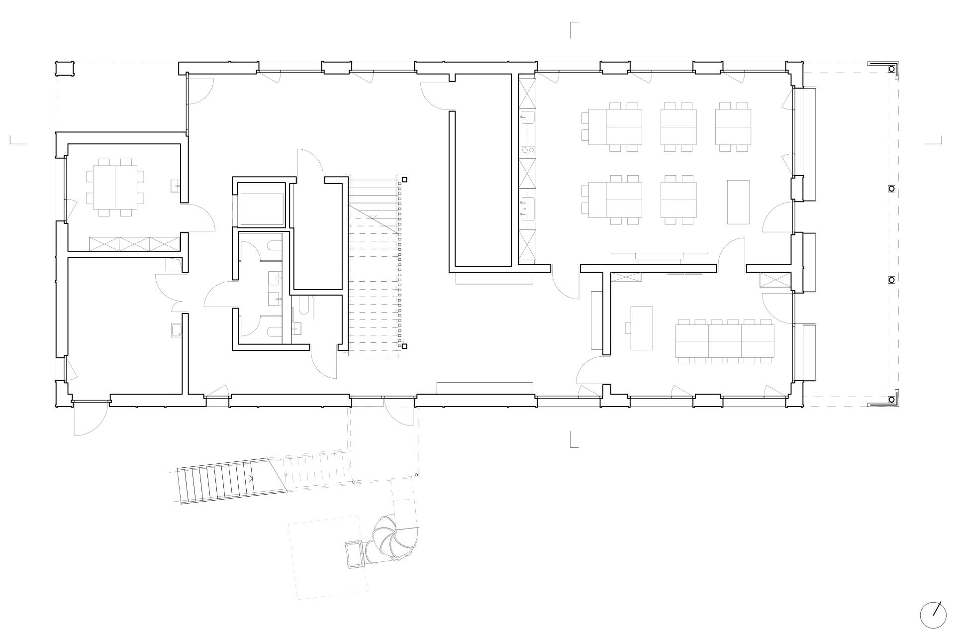
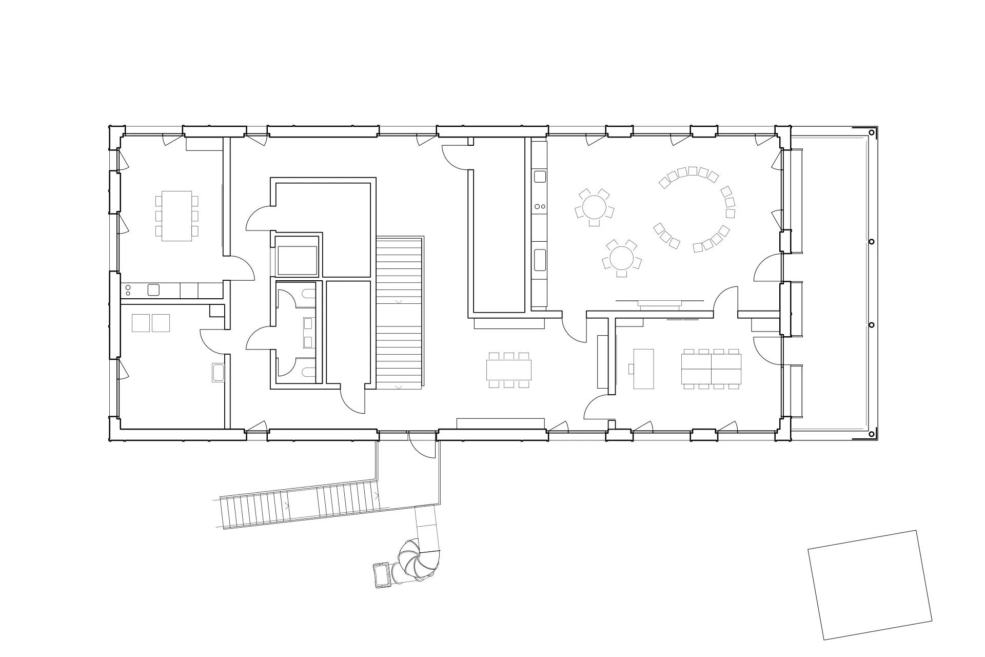
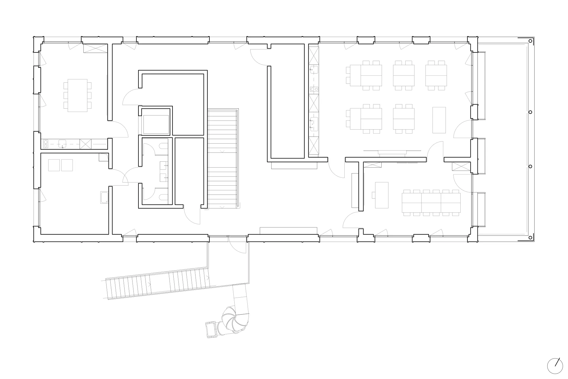
Pro Geschoss wurde je ein Klassenzimmer mit zugehörigem Gruppenraum, Garderobe und gedecktem Aussenraum angeordnet. Ergänzende Nutzungen sind kompakt um einen zentralen Servicekern organisiert: Im Erdgeschoss befinden sich die Räume für Logopädie, im Obergeschoss das Lehrerzimmer. Die Erschliessung wurde so konzipiert, dass die Korridorflächen für Spiel, Pause und Bewegung frei nutzbar bleiben. Direkte Fluchtwege ins Freie ermöglichten den Verzicht auf aufwendige Brandschutzabschlüsse; im Obergeschoss erfolgt die Flucht über eine aussenliegende Metalltreppe.
Das Dach wurde als extensiv begrüntes, biodiverses Flachdach ausgebildet. Durch eine differenzierte Substrathöhe, gezielte Bepflanzung und die Integration von Totholz entstehen Lebensräume für Insekten und Kleintiere. Die Dachgestaltung leistet damit gemeinsam mit der Freiraumgestaltung einen Beitrag zur Förderung der Biodiversität, zur Verbesserung des Mikroklimas des Schulareals und macht ökologische Zusammenhänge auch für die Kinder unmittelbar erlebbar.
Die Fassade aus Fichtenholz mit geschlossener, vertikaler Nut-und-Kamm-Schalung wurde in Felder gegliedert und rot lasiert. Die Ecken der gedeckten Aussenräume sind durch filigrane Holz-Rautengitter akzentuiert. Integrierte Sitzbänke beleben die Fassade und erweitern den Aufenthaltsraum nach aussen. Eine Aussentreppe mit Rutsche verbindet den Garten direkt mit dem Obergeschoss und schafft für Kinder und Lehrpersonen einen schnellen, attraktiven Zugang zwischen Innen- und Aussenraum.
| Kategorie | Ersatzneubau |
| Objektadresse | Scheibenstrasse 44, 3014 Bern |
| Bauherrschaft | Wyler-Baugesellschaft Bern AG |
| Leistungen Architekt | 100% von SIA 102 |
| Termine | Planung 2020 – 2023 / Ausführung 2023 – 2024 |
| Landschaftsarchitektur | Weber + Brönnimann AG, Bern |
| Bauingenieur:in | Nydegger + Finger AG, Bern |
| Holzbauingenieur:in | Holzprojekt AG, Bern |
| Elektroplanung | Amstein + Walthert AG, Bern |
| HLKS-Planung | Enerplan AG, Ostermundigen |
| Bauphysik | InfraBlow.Siegrist GmbH, Bolligen |
| Brandschutzplanung | Wälchli Architekten AG, Bern |
| Volumen SIA 416 | 3 080 m3 |
| Geschossfläche SIA 416 | 690 m2 |
| Kosten BKP 2 | CHF 3 380 000.– |