Wir verwenden Cookies.
Mehr Informationen finden Sie hier.
Die bestehende Bausubstanz im südlichen Rütibühl war stark sanierungsbedürftig und eignete sich strukturell nicht mehr für zeitgemässes Wohnen. Aus diesem Grund entschied sich die Grundeigentümerschaft, beidseits des westlichen Endes der Alpenstrasse durch Ersatzneubauten einen Beitrag zur Siedlungsverdichtung zu leisten und zusätzlichen Wohnraum zu schaffen.
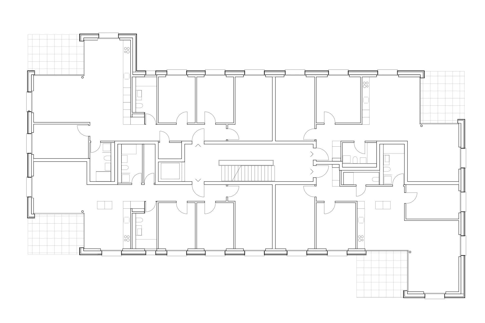
Im Zuge der Neugestaltung wurde das Ende der Alpenstrasse zu einem öffentlichen Freiraum aufgewertet, der nicht nur der neuen Überbauung, sondern dem gesamten Quartier als Spiel- und Aufenthaltsort dient. Vier Zeilenbauten oberhalb des neu geschaffenen Siedlungsplatzes wurden behutsam in den Hang eingebettet, wobei der natürliche Hangfluss erhalten blieb. Drei Punktbauten wurden als Solitäre im Park positioniert und vervollständigen das neue Ensemble. Durch die versetzte Anordnung und die Staffelung der Baukörper in der Höhe bilden sich immer wieder Durchblicke in Richtung Panorama.
Das vielfältige Wohnungsangebot von 1.5- bis 5.5-Zimmerwohnungen trägt zu einer heterogenen und lebendigen Bewohnerschaft im neuen Quartier bei. Der zentrale, autofreie Siedlungsplatz bildet das identitätsstiftende und adressbildende Element der Überbauung und bietet am Ortsrand ein offenes Fenster zur freien Landschaft.
| Kategorie | Neubau |
| Objektadresse | Alpenstrasse 61/63/65/72/74/76/78, 3074 Muri bei Bern |
| Bauherrschaft | Pensionskasse HACO, Gümligen |
| Leistungen Architektur | 100% von SIA 102 / Generalplanung |
| Termine | Überbauungsordnung 2019 – 2022 |
| Planung 2020 – 2022 / Ausführung 2023 – 2025 | |
| Landschaftsarchitektur | Klötzli Friedli AG, Bern |
| Bauingenieur:in | Nydegger + Finger AG, Bern |
| Elektroplanung | Brücker Ingenieure AG, Bern |
| HLKS-Planung | Gruner AG, Köniz |
| Bauphysik | InfraBlow Siegrist GbmH, Bolligen |
| Infrastruktur | Holinger AG, Bern |
| Volumen SIA 416 | 51 200 m3 |
| Geschossfläche SIA 416 | 15 900 m2 |
| Kosten BKP 2 | CHF 32 150 000.– |