Wir verwenden Cookies.
Mehr Informationen finden Sie hier.
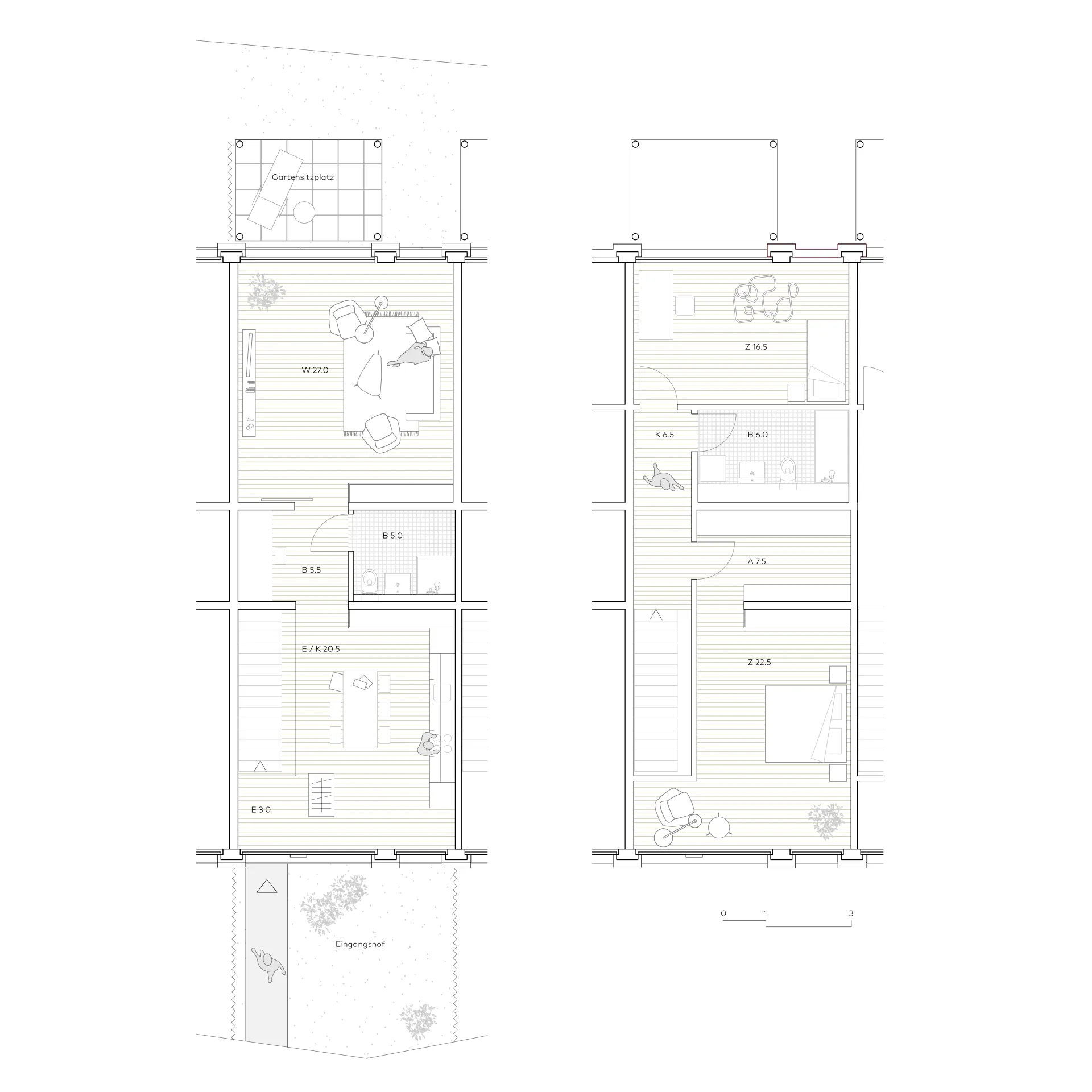
Das Verwaltungsgebäude an der Kasernenstrasse 19/21 entstand in den Jahren 1966/67. Geplant ist die Transformation zu einem Wohngebäude. Für die Umnutzung wird das Gebäude bis auf die Rohbaustruktur zurückgebaut.
Innovative, massgeschneiderte Wohnungsgrundrisse ermöglichen die effiziente Umnutzung unter Erhalt der Bestandesstruktur. Der Wohnungsmix beinhaltet zukünftig 89 Wohnungen vom 1 ½ Zimmerstudio bis hin zur 4 ½ Zimmerwohnung. Sieben Ateliers im Erdgeschoss ergänzen die Wohnnutzung. Rund 85% der Wohnungen sind eingeschossig, 15% der Wohnungen werden zweigeschossig als Townhouses und Duplex konzipiert. Durch neue, vorgelagerte Balkone erhalten die Wohnungen private Aussenräume.
Der durchdachte Umgang mit dem baulichen Bestand ist ein wichtiger Teil nachhaltiger Architekturlösungen. Mit der Adaption und Transformation des bestehenden Gebäudes kann ein relevanter Beitrag zum Klimaschutz geleistet werden.
| Kategorie | Umbau und Umnutzung |
| Objektadresse | Kasernenstrasse 19 + 21, Bern |
| Bauherrschaft | MEG Kasernenstrasse 19/21, Bern |
| Leistungen Architektur | 100% von SIA 102 |
| Termine | Studienauftrag 2020 |
| Planung 2021 – 2023 | |
| Ausführung 2024 – 2026 | |
| Landschaftsarchitektur | grünwerk1 landschaftsarchitekten ag, Olten |
| Bauingenieur:in | Nydegger + Finger AG, Bern |
| Elektroplanung | Vier Punkt Null GmbH, Uster |
| HLKS-Planung | Ingenieurbüro IEM AG, Thun |
| Bauphysik | Grolimund + Partner AG, Bern |
| Brandschutz | SafeT Swiss AG, Bern |
| Umweltingenieur | Geotechnisches Institut AG, Bern |
| Volumen SIA 416 | 51 600 m3 |
| Geschossfläche SIA 416 | 18 400 m2 |
| Kosten BKP 2 | CHF 21 300 000.– |