Wir verwenden Cookies.
Mehr Informationen finden Sie hier.
In den Spiezer Hofachern entsteht in unmittelbarer Nähe zur Volksschule ein neues Pädagogisches Zentrum für die Gemeinde Spiez, die HPS Niesen und das HSM Münchenbuchsee. Für die Gemeinde ist es ein zentrales Anliegen, die Angebote des HSM und der HPS am Standort Spiez langfristig sichern und weiterentwickeln zu können. Mit diesen Angeboten stärkt es den Schulstandort Spiez nachhaltig und schafft wertvolle Synergien.
Der Perimeter grenzt direkt an die Aussenräume der bestehenden Schulanlage. Der Neubau fasst das Areal im Südosten und nimmt mit seiner versetzten Grundrissfigur und der gestaffelten Höhenentwicklung die Massstäblichkeit des Quartiers auf. So fügt er sich selbstverständlich in Topografie und gewachsene Struktur ein.
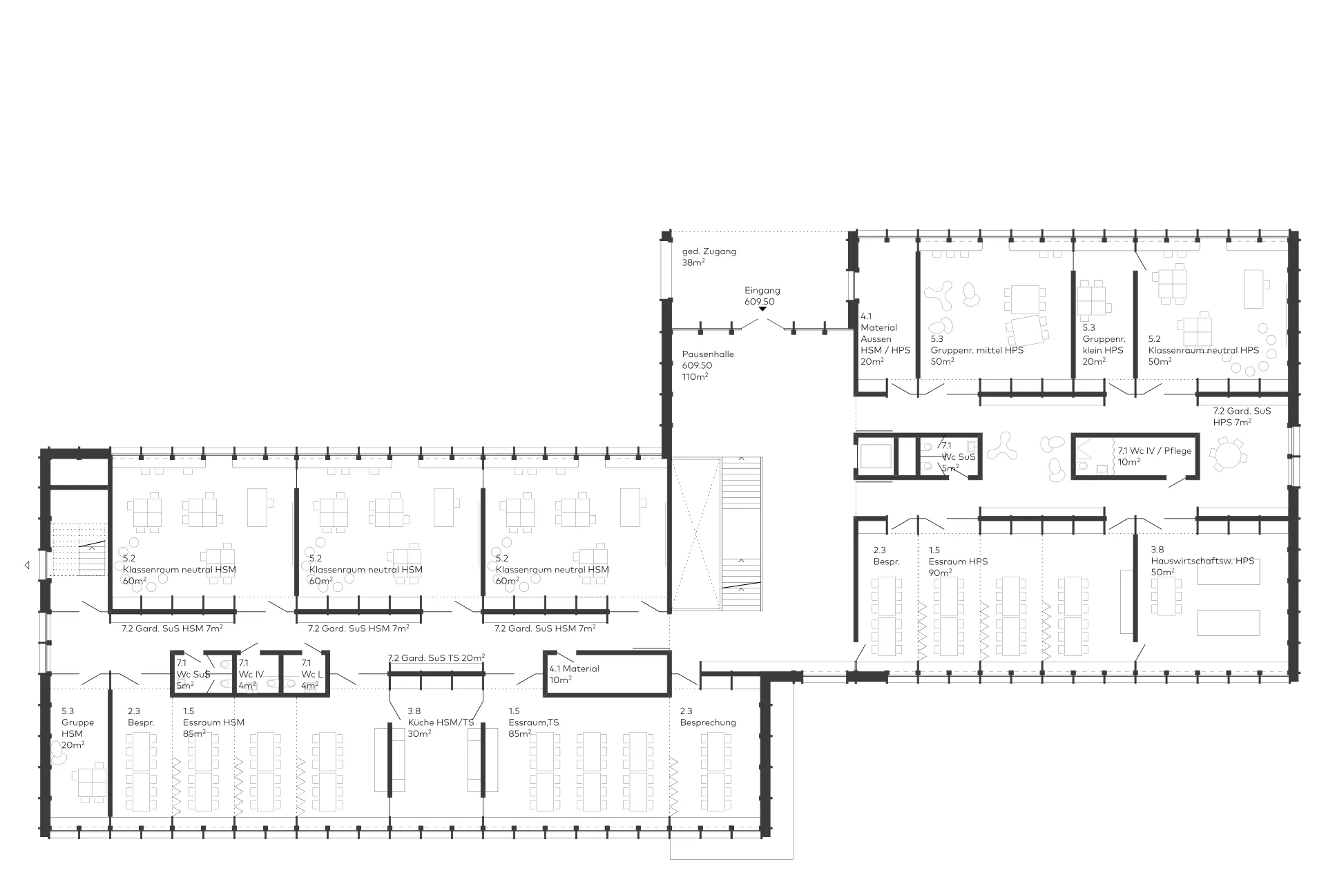
Die Anlage ist zweiflüglig organisiert und durch eine zentrale, grosszügige Erschliessung verbunden. Diese offene Mitte wird zur gemeinsamen Pausen- und Begegnungszone, die Austausch und Orientierung fördert.
Durch die gezielte Überlagerung bestimmter Nutzungen entsteht ein hoher Grad an Flexibilität und Wirtschaftlichkeit, der den langfristigen Betrieb unterstützt. Der Neubau ist als Holzbau konzipiert. Die Tragstruktur bleibt innen wie aussen ablesbar, das weit auskragende Vordach schützt die Konstruktion, und die geschuppte Holzschalung legt sich wie eine feine, schindelartige Hülle um das Gebäude.
| Kategorie | Neubau / Studienauftrag |
| Objektadresse | Oberlandstrasse / Parzelle Nr. 7136, 3700 Spiez |
| Auslober:in | Gemeinde Spiez |
| Amt für Grundstück und Gebäude des Kanton Bern | |
| Heilpädagogische Schule Niesen | |
| Termine | 2024 |
| Landschaftsarchitektur | Bryum GmbH, Basel |
| Bauingenieur:in | BSB + Partner Ingenieure und Planer AG, Liebefeld |
| Holzbau-Ingenieur:in | Indermühle Bauing. HTL/SIA, Thun |
| Elektroplanung | Elektroplanung Schneider AG, Münchenbuchsee |
| HLKS-Planung | Matter Ammann AG, Bern |