Schulanlage Zweien / Deitingen

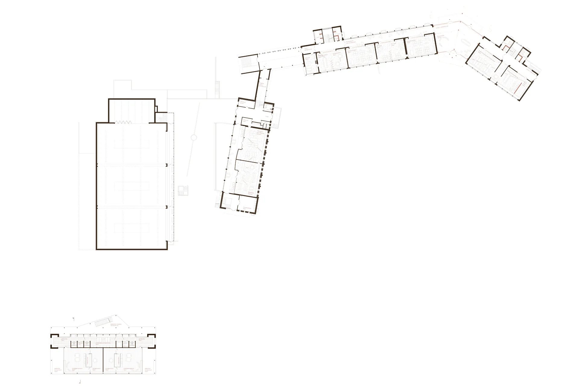
Der Neubau der Schulanlage Zweien in Deitingen entsteht auf der freien Parzelle südlich der bestehenden Sporthalle. Mit seiner langen, schlanken Zweigeschossigkeit nimmt der Baukörper die Ausrichtung der drei bestehenden Schulhäuser auf und fügt sich selbstverständlich in die gewachsene Struktur der Anlage ein. Die Einfachheit und Klarheit der Bestandsbauten bleiben sowohl in der Sanierung als auch in der Erweiterung erhalten und werden durch gezielte Eingriffe gestärkt.

Das räumliche Konzept des Neubaus basiert auf einem präzisen Stützen- und Trägerraster, das eine flexible Unterteilung zulässt und künftige Anpassungen der Nutzung ermöglicht. Die innere Ordnung und das statische Prinzip werden in der tektonisch ausformulierten, fein gegliederten Holzfassade sichtbar.

Die Umgebungsgestaltung bindet den Neubau harmonisch in das bestehende Schulareal ein. Ein neuer zentraler Platz am Kreuzungspunkt der Schulwege schafft eine klare Adresse und setzt einen identitätsstiftenden Akzent für das gesamte Schulumfeld.

KategorieGesamtsanierung und Erweiterung / Wettbewerb
ObjektadresseSchulhausstrasse 9, 4543 Deitingen
Auslober:inEinwohnergemeinde Deitingen
Leistungen ArchitekturProjektwettbewerb
Termine2025
LandschaftsarchitekturWeber + Brönnimann Landschaftsarchitekten AG, Bern
Zur Projektübersicht

Wir verwenden Cookies.
Mehr Informationen finden Sie hier.