Wir verwenden Cookies.
Mehr Informationen finden Sie hier.
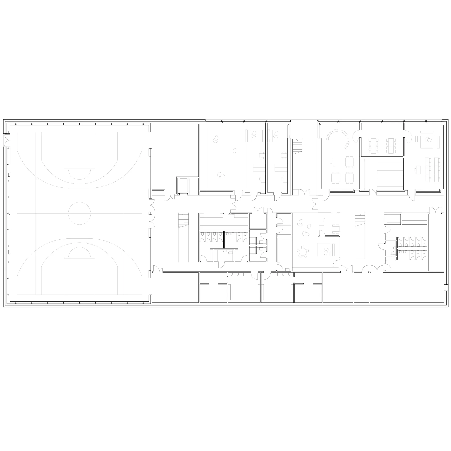
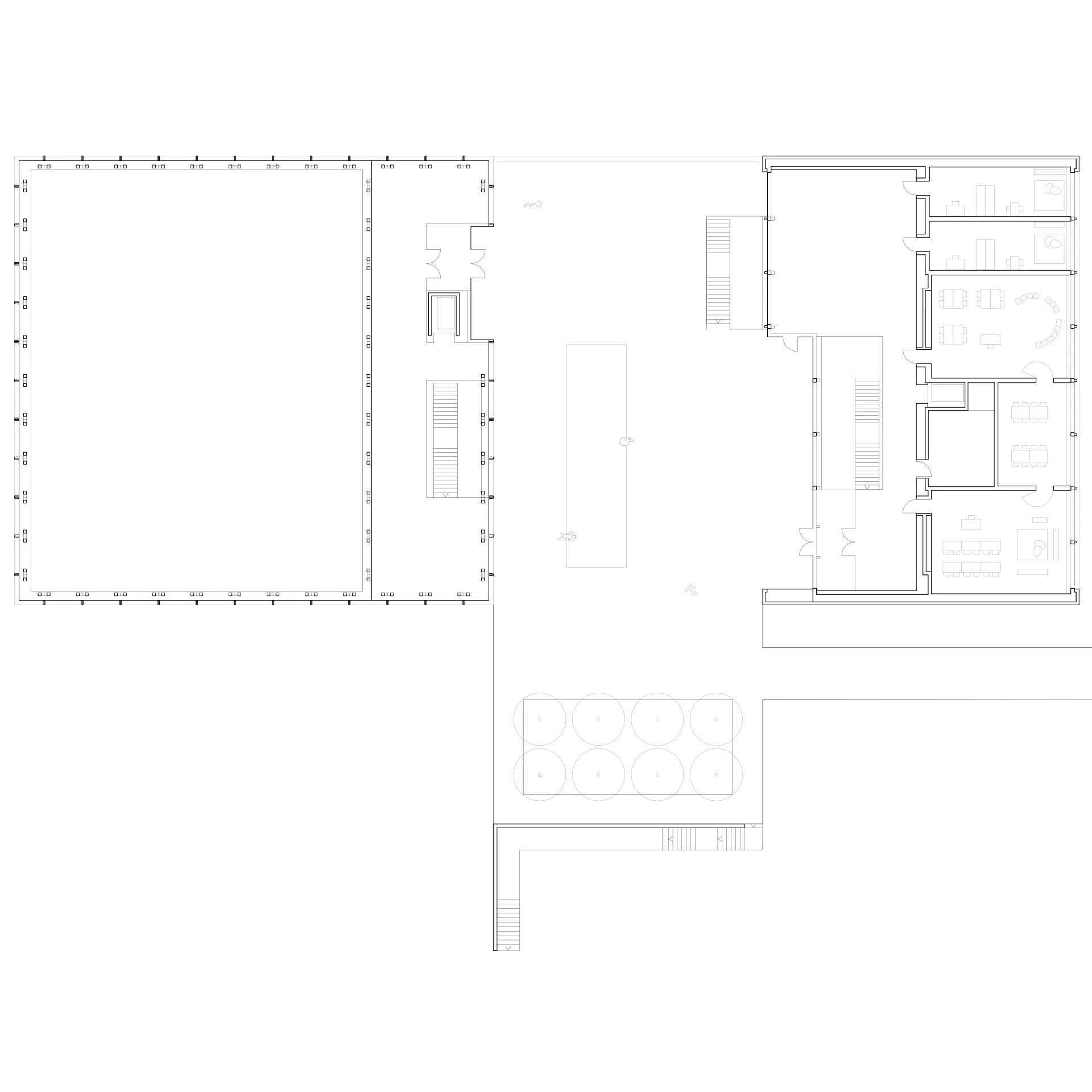
Die Schulanlage des PZHSM (Pädagogisches Zentrum für Hören und Sprache Münchenbuchsee) befindet sich in einem denkmalgeschützten Gebäudeensemble am Ortsrand von Münchenbuchsee. Der angrenzende grüne Landschaftsraum ist ein weiteres charakteristisches Merkmal der Schule. Die Anlage soll mit einer multifunktional nutzbaren Sporthalle, einer vierklassigen Sprachheilbasisstufe und einem Psychomotorikbereich erweitert werden.
Der Baukörper wird am Rand des kleinen Tals positioniert. Der Landschaftsraum bleibt frei, die Topografie spürbar. Das Gebäude entwickelt sich aus dem Terrain und nimmt sich in der Höhe stark zurück. Dadurch wird die Sicht auf die Silhouette des Schloss- und Kirchenbezirks nicht beeinträchtigt. Das Projekt wird als Pilotprojekt mit der Arbeitsmethode BIM umgesetzt. Das gesamte Planerteam nutzt hierbei die optimierte, integrale Planung mittels eines digitalen Gebäudemodells. In einem zweiten Schritt wurden bis 2022 die denkmalgeschützten Gebäude der Schulanlage saniert.
| Kategorie | Neubau |
| Auszeichnung | Offener Wettbewerb 1. Preis |
| Objektadresse | Klosterweg 18, 3053 Münchenbuchsee |
| Bauherrschaft | Amt für Grundstücke und Gebäude des Kantons Bern |
| Leistungen Architektur | 100% von SIA 102 |
| Termine | Wettbewerb 2014 |
| Planung 2015 – 2017 | |
| Ausführung 2018 – 2019 | |
| Landschaftsarchitektur | Luzius Saurer, Hinterkappelen |
| Bauingenieur:in | Ingenta AG, Bern |
| Elektroplanung | Schneider AG, Münchenbuchsee |
| HLKS-Planung | Matter + Ammann AG, Bern |
| Bauphysik | Grolimund + Partner AG, Bern |
| Medienplanung | Mediacon GmbH, Wangen a.A. |
| Lichtplanung | Büro Licht AG, Ittigen / Lucet GmbH, Bern |
| Fassadenplanung | Buri, Müller + Partner GmbH, Burgdorf |
| Brandschutzplanung | BDS, Security Design AG, Bern |
| Gastroplanung | HP Misteli, Oberwangen b.B. |
| Kunst am Bau | Linus Bill und Adrien Horni |
| Volumen SIA 416 | 17 710 m3 |
| Geschossfläche SIA 416 | 2 950 m2 |
| Kosten BKP 2 | CHF 14 600 000.– |
| Energiestandard | Minergie P Eco |