Aspi / Bellmund / 1. Rang

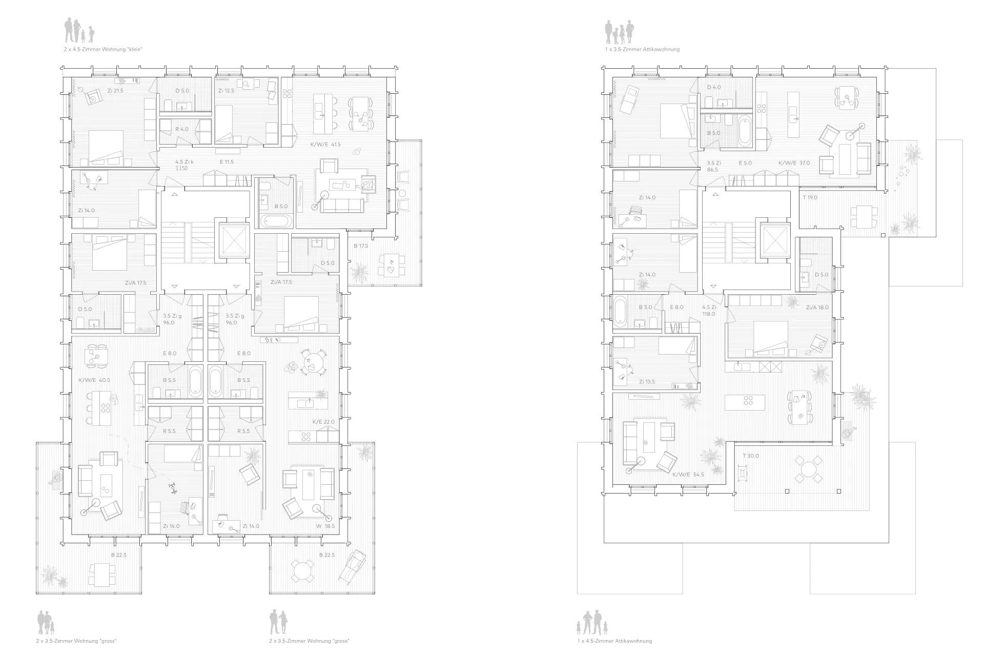
Die neue Wohnüberbauung liegt angrenzend an den Aspigraben am Siedlungsrand von Bellmund. Die Hauptorientierung nach Westen mit Blick auf den Bielersee und die erste Jurakette zeichnet den Ort aus. Die Weitsicht und Ausrichtung zur Nachmittags- und Abendsonne hin sind wesentlich für den Entwurf der neuen Wohnanlage. Dank der Konzentration der Baumasse mit drei grossen Gebäuden an der Hangkante entlang der Hauptstrasse und der Setzung von drei kleineren Punktbauten in den geneigten Muldenflanken kann eine optimale Aussichtssituation für alle Wohnungen geschaffen werden.

Mit zwei verwandten Gebäudetypen, Riegelhäusern und Punktbauten, kann ein vielfältiges Wohnungsangebot generiert werden. Die grösseren Riegelhäuser sind mit grosszügigen, ortstypischen Vorgärten an der Hauptstrasse adressiert. Jeweils drei Wohnungen pro Geschoss profitieren auch dank der Gebäudestaffelung entlang der Strasse von der Ausrichtung gegen Westen. Die in der Höhe und Tiefe gestaffelten, tieferliegenden Punktbauten folgen dem abfallenden Terrain, erscheinen kleinteiliger und gewähren den dahinterliegenden Riegelhäusern Ausblicke auf See und Jura. Mit zwei Wohnungen pro Geschoss und nur zwei Vollgeschossen sind die Punktbauten kleiner. Die sich in der Siedlung wiederholenden, übers Eck angeordneten Balkontürme verschmelzen den Wohnraum mit dem Aussenraum und unterstreichen die einmalige Lagequalität.

Die vertikal strukturierte Holzfassade mit Holzlisenen und Füllungen mit Holzbretterschalung und ein muraler Sockel, der abgetreppt dem Gelände folgt, übernehmen Themen der dörflichen Architektur.

KategorieNeubau
AuszeichnungStudienauftrag 1. Rang
ObjektadresseParzellen Aspi ZPP 7 / Hauptstrasse, 2564 Bellmund
Auslober:inEgli AG, Gümligen
Termine2022 – 2023
Landschaftsarchitekturdavid&vonarx landschaftsarchitektur gmbh, Solothurn
Zur Projektübersicht

Wir verwenden Cookies.
Mehr Informationen finden Sie hier.