Wir verwenden Cookies.
Mehr Informationen finden Sie hier.
Mit der Reorganisation der Schulstrukturen in Lauperswil und Rüderswil wurde eine langfristig tragfähige und zeitgemässe Schulorganisation geschaffen.
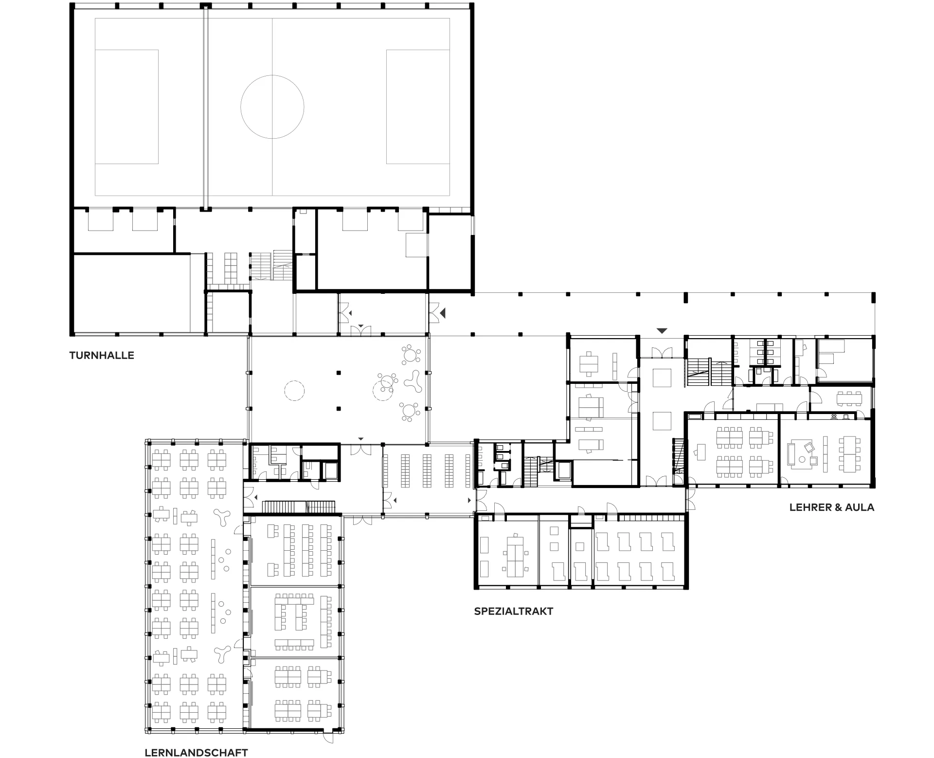
Die ehemals zweiteilig gegliederte Schulanlage wurde durch einen kompakten Ergänzungsbau erweitert. Im Erdgeschoss verbindet eine neue Eingangshalle die drei Gebäudeteile – Turnhalle, Aula/Spezialtrakt und die neuen Lernlandschaften – zu einem zusammenhängenden Schulkomplex.
Der Unterricht findet nun in offenen Lernlandschaften statt: Je drei Klassen sind zu einer Einheit zusammengefasst und arbeiten in flexiblen, zum Grünraum orientierten Bereichen. Impulsräume und offene Lernzonen ermöglichen unterschiedliche Lernatmosphären und fördern das Konzept des selbstorganisierten Lernens (SOL). Der Erweiterungsbau gilt im Kanton Bern als Leuchtturm- bzw. Pilotprojekt und nimmt in dieser Form eine Vorreiterrolle ein.
Die horizontale und vertikale Gliederung der Fassade greift Elemente des Bestands auf und interpretiert sie in einer zeitgemässen Architektursprache. Der Neubau wurde als reiner Holzbau realisiert; verwendet wurde ausschliesslich regionales Holz, das kurze Transportwege und eine nachhaltige Wertschöpfung in der Region sicherstellt. Die die Tragstruktur bleibt sowohl in der Fassade als auch im Inneren klar ablesbar und prägt die räumliche Identität des Gebäudes.
| Kategorie | Neubau |
| Auszeichnung | Studienauftrag 1. Rang |
| Objektadresse | Rüderswilstrasse 2, 3436 Zollbrück |
| Bauherrschaft | Baukommission OSZ, Rüderswil |
| Termine | Wettbewerb 2020 |
| Planung 2021 – 2023 | |
| Ausführung 2023 – 2025 | |
| Landschaftsarchitektur | Duo Landschaftsarchitekten Sarl, Lausanne |
| Bauingenieur:in | Wälchli Partner AG, Langenthal |
| Holzbauingenieur:in / Bauphysik / Brandschutz | Pirmin Jung Schweiz AG, Thun |
| Elektroplanung | Behring AG, Thun |
| HLKS-Planung | Grünig + Partner AG, Liebefeld |
| Lichtplanung | Lucet GmbH, Bern |
| Volumen SIA 416 | 10 800 m3 |
| Geschossfläche SIA 416 | 2 900 m2 |
| Kosten BKP 2 | CHF 9 000 000.– |
Mit neuem Schulraum zu neuer Lernkultur (PDF)
Dieser Text erschien zuerst im Schweizer ElternMagazin Fritz+Fränzi, Ausgabe Dezember 2025 / Januar 2026. Publikation mit freundlicher Genehmigung der Stiftung Elternsein.