Wir verwenden Cookies.
Mehr Informationen finden Sie hier.
Der Neubau im Wyler-Quartier bündelt Wohnen, Betreuung und soziale Angebote in einem gemeinsamen Baukörper. Entlang der Bahnlinie entsteht so ein klar gefasster städtebaulicher Abschluss, der zur sozial verträglichen Entwicklung des Quartiers beiträgt.
Die differenziert gestaltete Fassade verleiht dem grossen Bauvolumen Struktur und Massstäblichkeit. Ein Raster aus horizontalen und vertikalen Linien gliedert den Baukörper; Keramikplatten und Fenster füllen die Zwischenräume. Die Keramikoberflächen variieren in ihren Farbnuancen über die gesamte Gebäudelänge und je nach Nutzung, und sie verleihen dem Bau mit ihrer leicht gewellten Struktur eine eigenständige Identität.
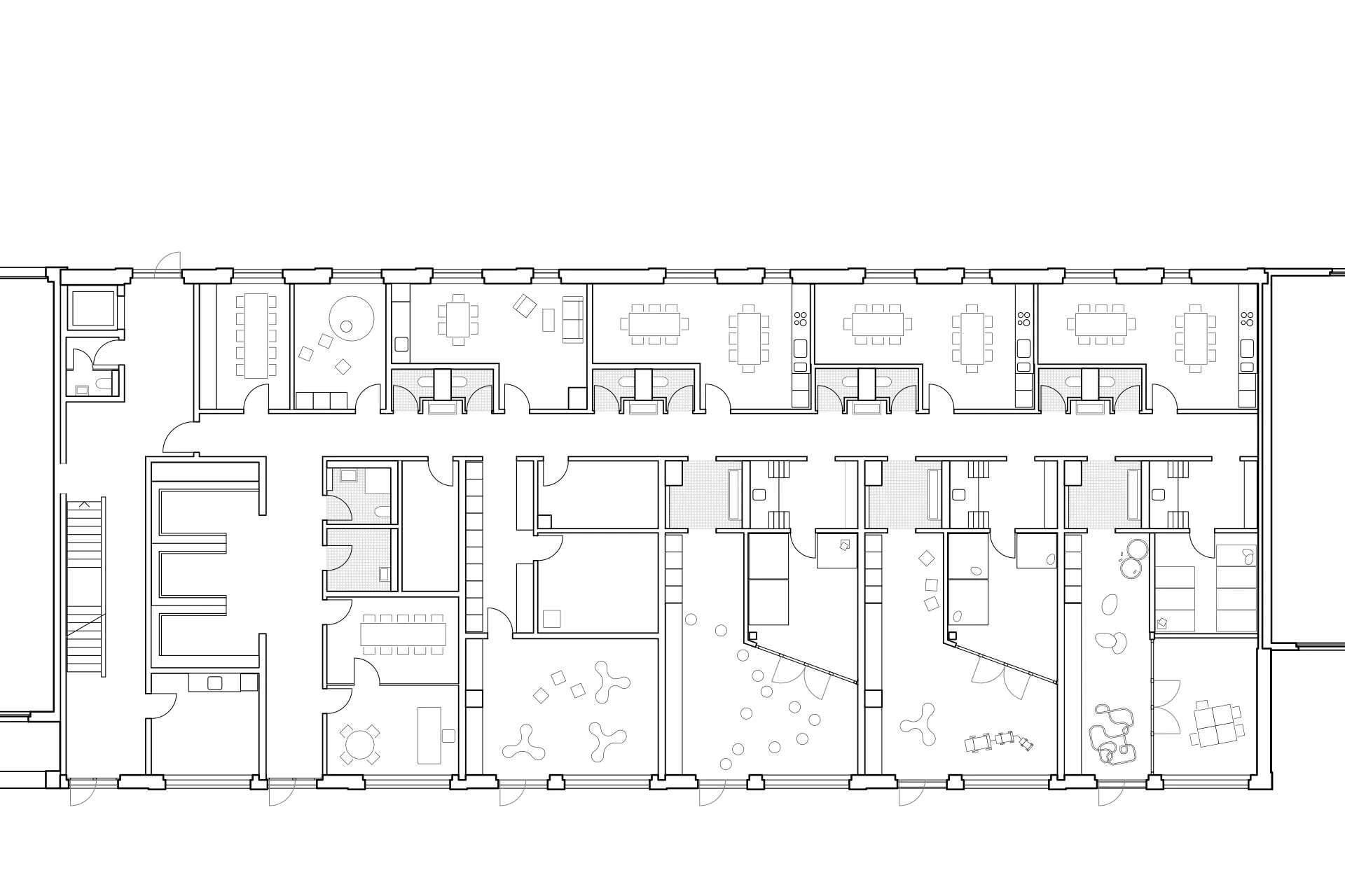
Im östlichen Gebäudeteil entstanden 34 gemeinnützige Mietwohnungen für Menschen mit bescheidenem Einkommen. Das Erdgeschoss beherbergt die städtische Kita und öffnet sich mit dem spielerischen Aussenraum zum Quartier.
Die Kita ist klar strukturiert und gut auffindbar erschlossen. Sie umfasst drei Spielgruppen mit jeweils zugeordneten Nebenräumen und wird durch einen Gemeinschaftsraum, einen Bewegungsraum und einen Werkraum ergänzt. Eine interne Verbindung über das Treppenhaus ermöglicht den Bezug von Mahlzeiten aus dem Restaurant des Pflegezentrums. Mit ihrer abgestuften Volumetrie vermittelt die Kita zwischen den unterschiedlichen Nutzungen und trägt wesentlich zu einer familienfreundlichen Quartierentwicklung bei.
| Kategorie | Ersatzneubau |
| Objektadresse | Wylerringstrasse 60, 3014 Bern |
| Bauherrschaft | Baugenossenschaft Aare Bern |
| Leistungen Architekt | 100% von SIA 102 |
| Termine | Planung 2017 – 2022 / Ausführung 2023 – 2025 |
| Landschaftsarchitektur | Klötzli Friedli Landschaftsarchitekten AG, Bern |
| Bauingenieur:in | Frutiger AG Engineering, Gümligen |
| Elektroplanung | Schneider AG, Münchenbuchsee |
| HLKS-Planung | Ingenieurbüro Riesen, Bern |
| Bauphysik | Grolimund + Partner AG, Bern |
| Verkehrsplanung | Metron Bern AG, Bern |
| Geologie | Geotest AG, Zollikofen |
| Brandschutzplanung | Wälchli Architekten Partner AG, Bern |
| Volumen SIA 416 | 14 240 m3 |
| Geschossfläche SIA 416 | 4 510 m2 |
| Kosten BKP 2 | CHF 12 087 000.– |