Wir verwenden Cookies.
Mehr Informationen finden Sie hier.
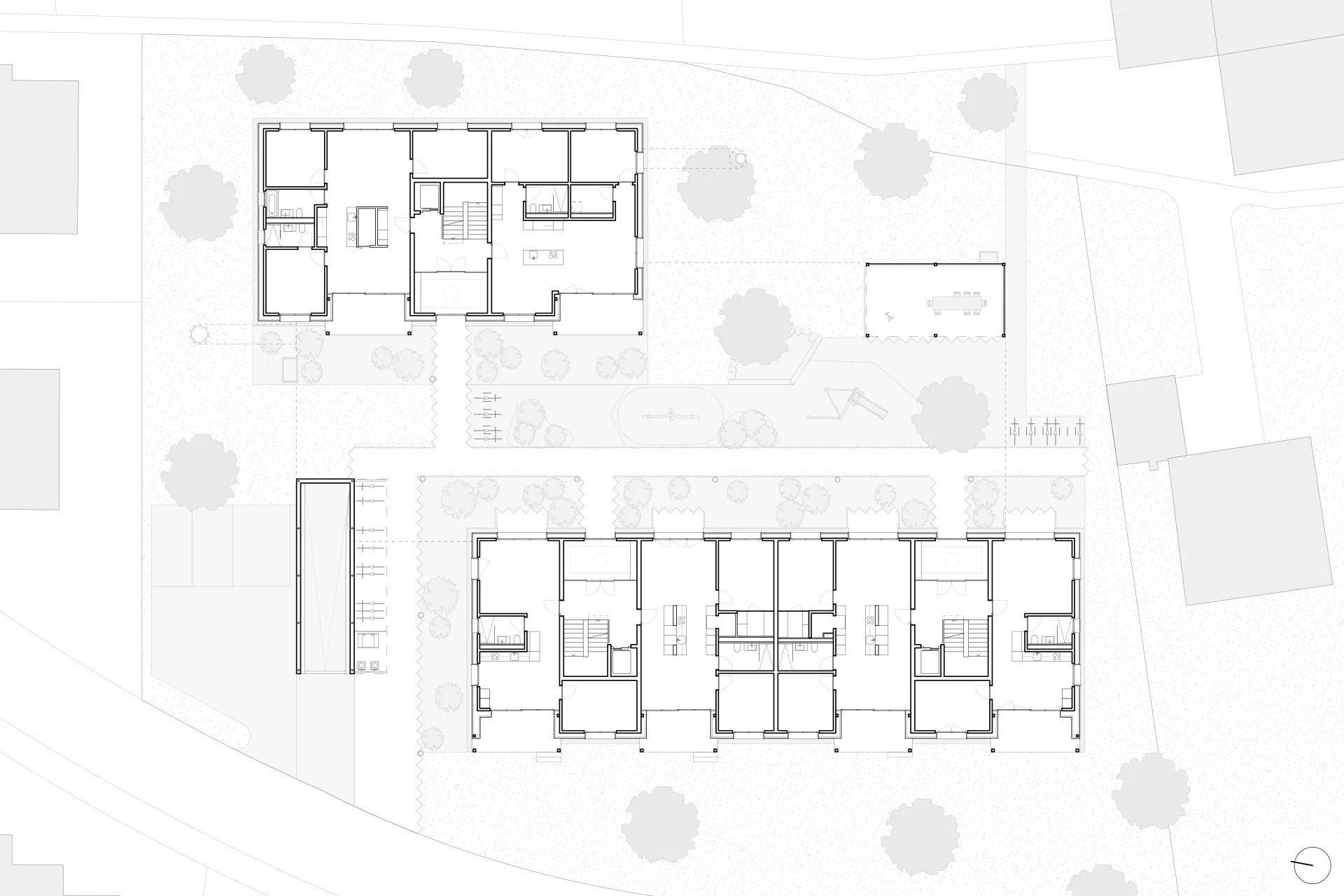
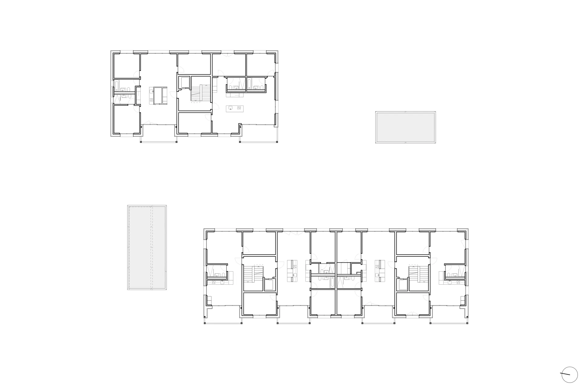
Im Dorfzentrum von Rupperswil, nahe der Schule, entstand eine Wohnüberbauung mit insgesamt 18 Mietwohnungen für Familien. In der ersten Etappe sind zwei Gebäude im nördlichen Teil der Parzelle vorgesehen; in einer späteren Etappe ein drittes Gebäude im Süden anstelle des ehemaligen Wohnhauses der Bauherrschaft. Die dreigeschossigen Zeilenbauten, umgeben von Grünraum, spannen einen gemeinsamen Platz auf und fügen sich zurückhaltend in das ruhige Wohnquartier und die Dorfstruktur ein. Erschlossen wird das Areal primär über den Lottenweg und die Gebäude über ein Wegenetz im gemeinsamen Zwischenbereich.
Die gefalteten Satteldächer, die an die Dächer der herkömmlichen Schöpfe und Bauernhöfe der Umgebung erinnern, und die halb eingezogenen Balkone, die von traditionellen hölzernen Lauben abgeleitet sind, schaffen eine Verbindung zur regionalen Baukultur.
Der äussere Ausdruck der Gebäude ist von einer vertikalen Holzverkleidung geprägt, die in einem leichten Grünton gestrichen ist und mit naturfarbenen Holzelementen und gliedernden Elementen ergänzt wird. Die raumhohen Fenster öffnen sich grosszügig gegen den sorgfältig gestalteten Aussenraum mit üppigem Grün und einheimischen Obstbäumen. Der geplante Obstgarten nimmt die Tradition des Obstbaus in der Region Aargau auf und prägt die Umgebung nachhaltig. Der gemeinsame Platz mit einem Pavillon bietet Raum für Begegnung und Spiel.
Holz wurde in der Fassade und den Balkonen als nachhaltiger und traditioneller Baustoff gewählt, der sowohl ökologische als auch kulturelle Aspekte berücksichtigt. Es gibt Ladeplätze für Elektroautos und grosszügige Flächen für Velos und Fahrradanhänger, um eine umweltfreundliche Mobilität zu fördern. Beheizt werden die Gebäude durch eine Grundwasserwärmepumpe. Die Photovoltaikanlage wurde als Indach-Anlage bündig integriert und deckt den gesamten Strombedarf der Überbauung.
| Kategorie | Neubau |
| Objektadresse | Lottenweg 7 / 9a / 9b, 5102 Rupperswil |
| Bauherrschaft | Richner Liegenschaften AG, Bern |
| Leistungen Architekt | 100% von SIA 102 |
| Termine | Planung 2018 – 2022 / Ausführung 2022 – 2024 |
| Landschaftsarchitektur | Klötzli Friedli Landschaftsarchitekten AG, Bern |
| Bauingenieur:in | qsi Engineering GmbH, Aarau |
| Elektroplanung | Elcon Elektro Engineering GmbH, Suhr |
| HLK-Planung | Thermoplan Suhr GmbH, Suhr |
| Sanitärplanung | Planungsbüro S. Widmer, Suhr |
| Bauphysik | Grolimund + Partner AG, Bern |
| Bauleitung | Consensus Projektmanagement GmhH, Gränichen |
| Volumen SIA 416 | 11 590 m3 |
| Geschossfläche SIA 416 | 3 470 m2 |
| Kosten BKP 2 | CHF 8 300 000.– |